Skate Park Enhancement Project
March 2, 2026 update:
At the July 30, 2025 IVGID Board of Trustees meeting, the Trustees approved an agreement with Spohn Ranch, Inc. to move forward with construction of the Skate Park Enhancement Project.
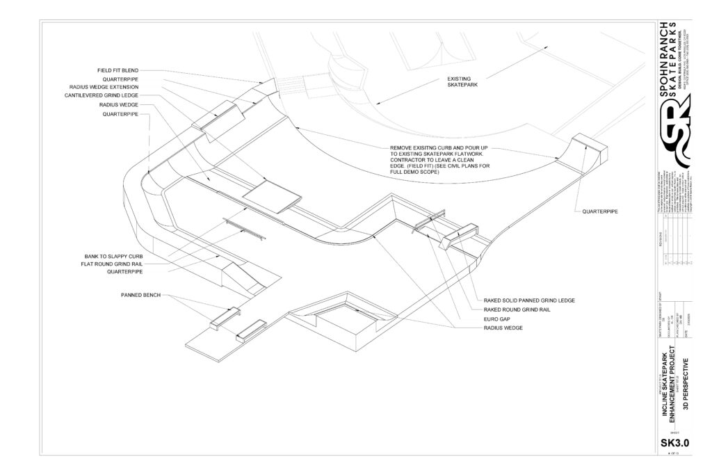
This project will add a new beginner-friendly zone to the existing skate park (see the conceptual images below or click here for different angles), as well as address repairs and safety concerns within the current skate park layout.
The project is slated to begin May 1, 2026 and finish up by the end of July 2026, which will allow for public use and skate camps to be held in August 2026.
Funding for the Skate Park Enhancement Project comes from IVGID’s Community Services Fund combined with a $250,000 American Rescue Plan Act (ARPA) grant from Washoe County.
Spohn Ranch – the designer/builder for the enhancement project – is a Los Angeles-based skatepark design-build firm. According to their website:
Spohn Ranch began as a community, anchored by Aaron Spohn’s backyard half-pipe, and grew into an award-winning skatepark design-build firm. A cornerstone of wheel sports progression for over 30 years, Spohn Ranch’s Los Angeles backyard roots have spread globally, culminating in hundreds of cutting-edge creations.
Via three decades of municipal skatepark projects, spanning 40+ states, 15+ countries and a variety of corporate clients including Red Bull and Vans, Spohn Ranch’s skatepark designers and skatepark builders have mastered a broad range of techniques specific to creating the highest-quality wheel-focused terrain possible.
With a firsthand passion for skateboarding and wheel sports, the Spohn Ranch family of highly-skilled craftsmen, including landscape designers, iron workers, grading wizards and ACI-certified shotcrete nozzlemen, pride themselves on designing and building skateparks with the relentless dedication to detail and architectural finesse that Spohn Ranch is known for.



March 2025 update:
The 30% Schematic Design was completed and presented to the Board on March 12, 2025 (Item G.3). The Board voted to proceed with the final design and construction of the larger Skate Park option, as shown in the plans linked below.
The final Design-Build contract with Spohn Ranch will be presented to the Board in July for approval. Construction is scheduled to begin on May 1, 2026.